新宿二丁目で物件をご紹介することは多いですが、今回の中江ビル4階のオフィスは、少しだけ、いや、かなり“特別感”のある空間です。二丁目の街の中にありながら、窓の外には新宿御苑の緑、そして室内はどうなっているのか…写真の順にご紹介していきましょう。
外観

建物は大通りから少し入った立地で落ち着いた佇まい。周辺は低層階に店舗、上階はオフィスと住宅が混在するエリアです。1Fは「おばんざいふじ」、通り向かいの1Fには「スペインバルPELPTA」など、飲食店が充実してます。
共用部分

黄色の扉がレトロかわいいエレベーター。乗っても降りても踊り場なので、毎回階段を何段かは上がったり下がったりしなくてはならない。重たい荷物の搬入搬出は大変ですが、日常の使い勝手には特に不便ありません。

5階について階段を下りると、黒い扉が2つ。右側はトイレのようなので、左側の扉を開けてみます。

扉を開けると、また2つの黒い扉が現れました。再度左の扉を開けてみます。
室内

なんと、レインボー!?
ドアを開けると、想像以上に広がる大きな空間。このカラフルなタイルカーペット、「刺さる人にはきっと刺さるはず!」ということで、一先ずこのまま募集しちゃいます。

正方形に近い形状で、自由度の高いレイアウトが可能。変な出っ張りや大きな柱もなく、デスクやオフィス家具がきれいに並べられます。

ようやく入口にあった2枚の扉の意味がわかりました。もともと2部屋だったのか、最初から1つの空間だったのかは分かりませんが、事務スペースと接客スペースを分ける使い方もできそうです。

そして、白いパーテーション(残置物)をパタパタとレールに沿ってスライドさせていくと、2部屋に仕切ることができます。

収納スペースはこちらと元給湯室のところと2箇所あります。消耗品や掃除道具を入れておくのにちょうどいい大きさです。
眺望

この物件最大の魅力は窓が多いこと。そして、窓の外には新宿御苑の緑や新宿御苑トンネルを望むことができます。二丁目にいながら、窓を開けると爽やかな空気が抜けていきます。
水回り

給湯器付きのミニキッチン。白を基調としたシンプルなデザインで、空間の雰囲気に馴染んでいます。そして右の隙間収納(残置物)のピッタリ具合がすごい!これこそシンデレラフィット!

一度階段室に出て、もう一つの黒い扉を開けると専用トイレがあります。小便器の掃除は結構手間かもしれませんが、男子にはやっぱりうれしい設備です。
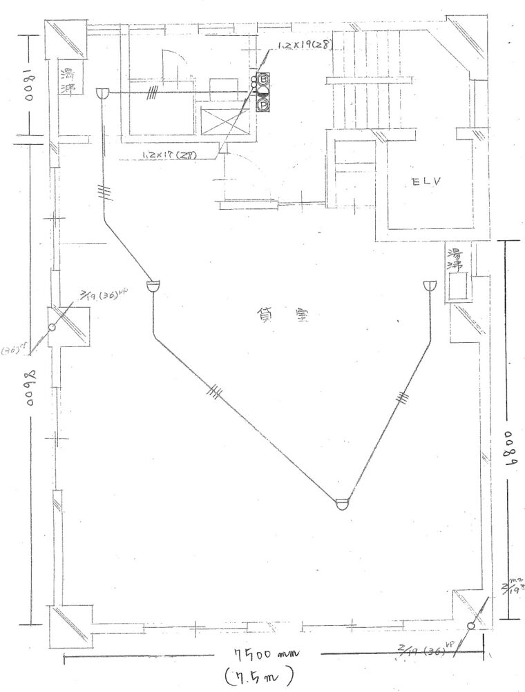
間取り

新宿三丁目駅・新宿御苑前駅ともに徒歩5分、JR新宿駅も徒歩10分圏内という利便性の高い立地。カラフルでレインボーな床、ワンフロア利用、窓の外には新宿御苑の緑。立地・個性・開放感を兼ね備えたオフィスをお探しの方に、ぜひご検討いただきたい物件です。
物件情報
| 物件名 | 中江ビル 4F | ||
|---|---|---|---|
| 交通 | 丸の内線 新宿御苑前駅 徒歩5分 | 所在地 | 東京都新宿区新宿2丁目 |
| 賃料 | 291,500円(税込) | 管理費 | 11,000円(税込) |
| 礼金 | なし | 敷金 | |
| 保証金 | 3ヶ月 | 保証金償却 | 解約時1ヶ月 |
| 構造 | 鉄筋コンクリート造 | 階/階建 | 4階/7階建 |
| 面積 | 71.72㎡(約21.69坪) | 間取詳細 | 事務所 |
| 築年月 | 1970年10月 | 向き | 南西 |
| 火災保険 | 要加入 | 保証会社 | 要加入(連帯保証人有[法人代表可]月額賃料等の50%~、契約時のみ) |
| 契約種類 | 定期借家3年 | 更新料等 | 再契約時1ヶ月(礼金) |
| 取引態様 | 専任媒介 | 入居時期 | 即時 |
| 条件 | 町会費500円/月額 | ||
| 設備 | LED照明器具、エアコン×2、キッチン、キッチン横収納(残置物)、パーテーション(残置物)、トイレ(様式・小便器あり) | ||
| 備考 | 店舗使用不可 | ||


